Parys wersja podstawowa4 599 zł

autor: architekt Katarzyna Maciejewska

Powierzchnia użytkowa

139,36 +Garaż: 17,64
+Strych / pralnia: 5,56 (8,96)
+Strych: 12,39 (15,79)

Powierzchnia zabudowy

130,64

Kubatura

810,15

Wysokość budynku

8,45m

Kąt dachu

40,00°

Powierzchnia dachu

240,86

Ep

40,30 kWh/(m²rok) biomasa

Minimalne wymiary działki

21,64x18,04m

Projekt klasycznego domu z dwuspadowym dachem, w którym wygonie zamieszka 4-5 osobowa rodzina. Do dyspozycji mieszkańców jest duża otwarta kuchnia (w razie potrzeby można ją zamknąć ścianką działową). Nie zapomniano w niej o miejscu pod zabudowę sprzętem AGD i praktycznej spiżarni. Duży, przestronny salon z ciekawym wykuszem jadalnym jest doskonałym miejscem wypoczynku w ciągu dnia, a centralne położenie kominka nadaje całości przytulnego charakteru i doskonale sprawdzi się podczas ogrzewania domu w zimie. Bezpośrednio z pokojem dziennym sąsiaduje dodatkowy pokój, który może pełnić funkcję gabinetu lub pokoju gościnnego. Do garażu dostajemy się przez praktyczne pomieszczenie gospodarcze, w pobliżu którego znalazła się niewielka łazienka. Za garażem znajduje się kotłownia, z bezpośrednim wyjściem na ogród. Jej duża powierzchnia pozwala rozważać inny sposób ogrzewania niż gazowe. Poddasze to typowa strefa nocna. Znajdują się tu 3 ustawne pokoje oraz duża łazienka. Prawdziwą zaletą jest jednak pomieszczenie znajdujące się nad garażem. Zostało ono podzielone na dwie części. Do jednej dostajemy się wprost z łazienki i można z niego zrobić pralnię. Drugą część, dostępną z klatki schodowej, można przerobić na gabinet, pokój hobby, lub po prostu dodatkowe pomieszczenie mieszkalne. Pomieszczenia te mogą być też połączone, tworząc jedno duże. Dom ma nieskomplikowaną bryłę i prosty dach, dzięki czemu będzie tani w budowie i późniejszej eksploatacji.

Uwaga! Dokumentacja Projektowa nie zawiera elementów małej architektury takich jak: donice, podesty, altany, grille ogrodowe, murki, pergole, a także innych elementów wizualizacji, takich jak: garaże i wiaty wolnostojące, drogi, podjazdy, ogrodzenia, baseny itp.

Dodatki do projektu

  • Zestawienie materiałów do projektu GRATIS* !!!

    Zestawienie materiałów do projektu GRATIS* !!!

    Wykaz podstawowych materiałów i prac niezbędnych do budowy domu, czyli tzw. ślepy kosztorys. Stanowi nieoceniony dodatek do projektu, uzupełnia go, ułatwia budowę, jest podstawą wyceny kosztów budowy i robocizny.
    * Dla projektów z gotowym kosztorysem

  • Kosztorys inwestorski w cenie 500 zł

    Kosztorys inwestorski w cenie 500 zł

    Kosztorys inwestorski zawiera dokładnie wyliczone koszty budowy domu od stanu zero do stanu deweloperskiego. Wszystkie nasze kosztorysy zawierają ponadto szacunkowe koszty instalacji oraz dodany podatek VAT.

    W wielu przypadkach koszty budowy naszych domów opierają się o dwa poziomy cen – średnie i minimalne, daje to jeszcze lepszy obraz tego, z jaką rozpiętością wydatków będzie się musiał zmierzyć przyszły Inwestor.

  • Dodatkowy egzemplarz projektu w cenie 450 zł

    Dodatkowy egzemplarz projektu w cenie 450 zł

    Przyda się w trakcie zbierania ofert i wycen, a także podczas prac budowlanych. Warunkiem zakupu jest posiadanie oryginalnego projektu naszej pracowni. Dodatkowy egzemplarz można także oczywiście zamówić przy zakupie projektu. Dodatkowy egzemplarz składa się z projektu architektoniczno-budowlanego i projektu technicznego.

  • Ogrzewanie na paliwo stałe GRATIS !!!

    Ogrzewanie na paliwo stałe GRATIS !!!

    Projekty oznaczone tą ikonką mają w standardzie zaprojektowane ogrzewanie na paliwo stałe (biomasę) oraz, jako alternatywę, ogrzewanie przy pomocy gazu ziemnego lub pompy ciepła. Inwestorzy często wybierają ogrzewanie na paliwo stałe ze względu na niskie koszty lub brak dostępu do sieci gazowej. Dokumentacja zawiera zawsze dwa w pełni zaprojektowane rodzaje ogrzewania. Daje to komfort swobody wyboru, bez konieczności przerabiana projektu.

  • Elektroniczna wersja projektu w cenie 700 zł

    Elektroniczna wersja projektu w cenie 700 zł

    Wersja elektroniczna projektu jest przydatna na etapie adaptacji projektu bądź w momencie gdy projekt jest złożony w urzędzie, a istnieje potrzeba ustalenia współpracy z wykonawcami. Wersja elektroniczna projektu wysyłana jest drogą elektroniczną, po wcześniejszym zakupie pełnej wersji papierowej projektu. Rekomendujemy zakup wersji elektronicznej projektu, po wcześniejszych konsultacjach z architektem adaptującym, ponieważ nie ma możliwości zwrotu wersji elektronicznej projektu. Każda wersja elektroniczna projektu, podobnie jak wersja papierowa, zabezpieczona jest specjalnym Indywidualnym Numerem Ewidencyjnym dla danego kupującego.

    Wersja elektroniczna projektu zawiera:

    • Opis architektoniczno-budowlany - wersja edytowalna
    • Architektura budynku - Pliki DWG (wersja edytowalna): Rzut działki, Elewacje, Rzuty kondygnacji, Przekroje
    • Architektura budynku - Pliki PDF: Elewacje, Rzuty kondygnacji, Rzut dachu, Przekroje, Zestawienie stolarki, Zestawienie warstw, Zestawienie materiałów (przedmiar robót)
    • Konstrukcja budynku - Pliki PDF: Rzut fundamentów, Rzut stropu, Rzut więźby dachowej.

Rzut parteru 82,67

     
1.1 Wiatrołap 3,15m²
1.2 Hol, schody 8,10m²
1.3 Spiżarnia 1,86m²
1.4 Kuchnia 9,21m²
1.5 Salon z jadalnią 33,62m²
1.6 Gabinet 12,61m² (13,14m²)
1.7 Łazienka 3,09m²
1.8 Pom. gospodarcze 4,30m²
1.9 Kotłownia 6,83m²
1.10 Garaż 17,64m²
 

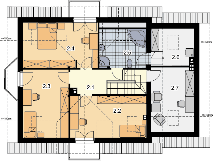
Rzut poddasza 56,69 (72,22 m²)


zestawienie powierzchni użytkowej (powierzchnia podłogi)

     
2.1 Komunikacja 6,11m² (6,11m²)
2.2 Pokój 13,45m² (18,27m²)
2.3 Pokój 13,67m² (17,89m²)
2.4 Pokój 15,38m² (19,43m²)
2.5 Łazienka 8,08m² (10,52m²)
2.6 Strych / pralnia 5,56m² (8,96m²)
2.7 Strych 12,39m² (15,79m²)
 

Przekrój

  • Budynek posadowiony został na fundamentach betonowych.
  • Ściany zewnętrzne dwuwarstwowe z betonu komórkowego.
  • Ściany wewnętrzne z betonu komórkowego jak i z płyty gipsowo-kartonowej [na ruszcie].
  • Strop żelbetowy-wylewany.
  • Więźba dachowa drewniana.
  • Pokrycie dachu - dachówka cementowa.
  • Ogrzewanie gazowe lub na paliwo stałe.

Elewacje

Rzut działki

 

 

Każdy projekt gotowy wymaga adaptacji do działki, przez uprawnionego architekta, zgodnie z miejscowym planem zagospodarowania przestrzennego. Architekt adaptujący może także wprowadzić wszelkie zmiany w projekcie gotowym, dostosowując go do indywidualnych potrzeb inwestora.

 

 

 

Znajdź adaptującego

 

 

 

Zapytaj o rysunki szczegółowe

Wyceń budowę domu w technologii murowanej

Wyceń budowę domu w technologii murowanej