Ajaks 6 B wersja podstawowa4 499 zł

autor: architekt Katarzyna Maciejewska

Powierzchnia użytkowa

120,00 +Kotłownia: 11,10
+Garaż: 24,80
+Strych: 30,59 (33,28)

Powierzchnia zabudowy

142,63

Powierzchnia całkowita

271,12

Powierzchnia netto

186,49

Kubatura

899,97

Wysokość budynku

8,77m

Kąt dachu

40,00°

Powierzchnia dachu

212,82

Ep

22,90 kWh/(m²rok) biomasa

0,00* kWh/(m²rok) pompa ciepła

*projekt zeroenergetyczny

Minimalne wymiary działki

21,84x19,99m

Projekt nowoczesnego domu z poddaszem użytkowym i wbudowanym garażem, który łączy w sobie funkcjonalność oraz nowoczesny design. Budynek ma do zaoferowania bardzo dużo przestrzeni. Na parterze znalazły się: spory wiatrołap, kuchnia, przestronny salon, praktyczna spiżarnia, łazienka, garaż, duża kotłownia oraz dodatkowy pokój, który można przeznaczyć np. na gabinet. W budynku zaprojektowano 2 rodzaje ogrzewania: piec na BIOMASĘ oraz POMPĘ CIEPŁA. Inwestor ma w ten sposób wybór i może zdecydować, które ogrzewania zastosować w swoim domu. Pakiet z pompą ciepła zawiera dodatkowo projekt ogrzewania podłogowego oraz projekt instalacji fotowoltaicznej. Na piętrze znajdują się trzy ustawne pokoje i duża łazienka z miejscem na wannę i prysznic. Główna sypialnia została połączona z przestronną garderobą, ze spocznika schodów dostaniemy się natomiast do pomieszczenia nad garażem, które może pełnić rolę strychu, miejsca zabaw lub po prostu dodatkowego pokoju.

Dom ma nieskomplikowaną bryłę i prosty, dwuspadowy dach, co niewątpliwie będzie miało istotny wpływ na obniżenie kosztów budowy. Elewację budynku wykończono w nowoczesnym stylu, której biel kontrastuje z grafitowym kolorem stolarki i dachówki oraz modną okładziną drewnianą o ciepłym odcieniu.

Przy projektowaniu domu Ajaks 6 B nie zapomnieliśmy o ekologii. Dokumentacja projektowa zawiera alternatywną wentylację mechaniczną, a dzięki zastosowanym materiałom cały budynek ma minimalny wpływ na środowisko naturalne i spełnia wszystkie rygorystyczne wymogi współczesnego projektowania.

Uwaga! Dokumentacja Projektowa nie zawiera elementów małej architektury takich jak: donice, podesty, altany, grille ogrodowe, murki, pergole, a także innych elementów wizualizacji, takich jak: garaże i wiaty wolnostojące, drogi, podjazdy, ogrodzenia, baseny itp.

Dodatki do projektu

  • Zestawienie materiałów do projektu GRATIS* !!!

    Zestawienie materiałów do projektu GRATIS* !!!

    Wykaz podstawowych materiałów i prac niezbędnych do budowy domu, czyli tzw. ślepy kosztorys. Stanowi nieoceniony dodatek do projektu, uzupełnia go, ułatwia budowę, jest podstawą wyceny kosztów budowy i robocizny.
    * Dla projektów z gotowym kosztorysem

  • Kosztorys inwestorski w cenie 500 zł

    Kosztorys inwestorski w cenie 500 zł

    Kosztorys inwestorski zawiera dokładnie wyliczone koszty budowy domu od stanu zero do stanu deweloperskiego. Wszystkie nasze kosztorysy zawierają ponadto szacunkowe koszty instalacji oraz dodany podatek VAT.

    W wielu przypadkach koszty budowy naszych domów opierają się o dwa poziomy cen – średnie i minimalne, daje to jeszcze lepszy obraz tego, z jaką rozpiętością wydatków będzie się musiał zmierzyć przyszły Inwestor.

  • Dodatkowy egzemplarz projektu w cenie 450 zł

    Dodatkowy egzemplarz projektu w cenie 450 zł

    Przyda się w trakcie zbierania ofert i wycen, a także podczas prac budowlanych. Warunkiem zakupu jest posiadanie oryginalnego projektu naszej pracowni. Dodatkowy egzemplarz można także oczywiście zamówić przy zakupie projektu. Dodatkowy egzemplarz składa się z projektu architektoniczno-budowlanego i projektu technicznego.

  • Rekuperacja GRATIS !!!

    Rekuperacja GRATIS !!!

    Rekuperacja, będąc wentylacją mechaniczną, opiera się na ruchu powietrza wytwarzanym przez maszynę, urządzenie zwane rekuperatorem. Rekuperator umożliwia kontrolowanie ruchu powietrza nawiewanego i usuwanego z pomieszczeń oraz odzyskiwanie ciepła, z nagrzanego już, ale brudnego (wilgotnego i nasyconego dwutlenkiem węgla) powietrza.

    Innymi słowy rekuperacja to system służący do wymieniania zużytego, brudnego powietrza w Twoim domu na czyste, świeże, przy jednoczesnym odzyskiwaniu części zgromadzonego już ciepła.

  • Ogrzewanie na paliwo stałe GRATIS !!!

    Ogrzewanie na paliwo stałe GRATIS !!!

    Projekty oznaczone tą ikonką mają w standardzie zaprojektowane ogrzewanie na paliwo stałe (biomasę) oraz, jako alternatywę, ogrzewanie przy pomocy gazu ziemnego lub pompy ciepła. Inwestorzy często wybierają ogrzewanie na paliwo stałe ze względu na niskie koszty lub brak dostępu do sieci gazowej. Dokumentacja zawiera zawsze dwa w pełni zaprojektowane rodzaje ogrzewania. Daje to komfort swobody wyboru, bez konieczności przerabiana projektu.

  • Pakiet energetyczny GRATIS !!!

    Pakiet energetyczny GRATIS !!!

    Projekty oznaczone tą ikonką posiadają zaprojektowane ogrzewanie przy pomocy pompy ciepła i ogrzewania podłogowego oraz gratisowy projekt instalacji fotowoltaicznej. Dodatkowo dokumentacja zawiera projekt ogrzewania na biomasę (pellet).

  • Elektroniczna wersja projektu w cenie 700 zł

    Elektroniczna wersja projektu w cenie 700 zł

    Wersja elektroniczna projektu jest przydatna na etapie adaptacji projektu bądź w momencie gdy projekt jest złożony w urzędzie, a istnieje potrzeba ustalenia współpracy z wykonawcami. Wersja elektroniczna projektu wysyłana jest drogą elektroniczną, po wcześniejszym zakupie pełnej wersji papierowej projektu. Rekomendujemy zakup wersji elektronicznej projektu, po wcześniejszych konsultacjach z architektem adaptującym, ponieważ nie ma możliwości zwrotu wersji elektronicznej projektu. Każda wersja elektroniczna projektu, podobnie jak wersja papierowa, zabezpieczona jest specjalnym Indywidualnym Numerem Ewidencyjnym dla danego kupującego.

    Wersja elektroniczna projektu zawiera:

    • Opis architektoniczno-budowlany - wersja edytowalna
    • Architektura budynku - Pliki DWG (wersja edytowalna): Rzut działki, Elewacje, Rzuty kondygnacji, Przekroje
    • Architektura budynku - Pliki PDF: Elewacje, Rzuty kondygnacji, Rzut dachu, Przekroje, Zestawienie stolarki, Zestawienie warstw, Zestawienie materiałów (przedmiar robót)
    • Konstrukcja budynku - Pliki PDF: Rzut fundamentów, Rzut stropu, Rzut więźby dachowej.

Rzut parteru 68,10

     
1.1 Wiatrołap 7,45m²
1.2 Spiżarnia 1,70m²
1.3 Kuchnia 10,80m²
1.4 Salon z jadalnią 31,40m²
1.5 Gabinet 9,80m²
1.6 Komunikacja 2,95m²
1.7 Łazienka 4,00m²
1.8 Kotłownia 11,10m²
1.9 Garaż 24,80m²
 

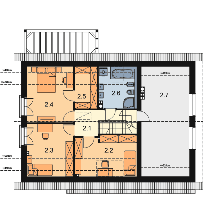
Rzut poddasza 51,90 (68,84 m²)


zestawienie powierzchni użytkowej (powierzchnia podłogi)

     
2.1 Komunikacja 5,30m² (5,30m²)
2.2 Pokój 11,05m² (15,77m²)
2.3 Pokój 11,85m² (15,42m²)
2.4 Pokój 12,85m² (16,38m²)
2.5 Garderoba 4,30m² (6,02m²)
2.6 Łazienka 6,55m² (9,95m²)
2.7 Strych 30,59m² (33,28m²)
 

Przekrój

  • Budynek posadowiony został na fundamentach betonowych.
  • Ściany zewnętrzne dwuwarstwowe z betonu komórkowego 24cm + 20cm styropianu.
  • Ściany wewnętrzne z betonu komórkowego jak i z płyty gipsowo-kartonowej [na ruszcie].
  • Strop żelbetowy-wylewany.
  • Więźba dachowa drewniana.
  • Pokrycie dachu - dachówka ceramiczna lub cementowa.
  • Wentylacja grawitacyjna + wentylacja mechaniczna z rekuperacją (do wyboru na etapie adaptacji).
  • Ogrzewanie pompa ciepła z instalacją fotowoltaiczną + biomasa (do wyboru na etapie adaptacji projektu).

Elewacje

Rzut działki

 

 

Każdy projekt gotowy wymaga adaptacji do działki, przez uprawnionego architekta, zgodnie z miejscowym planem zagospodarowania przestrzennego. Architekt adaptujący może także wprowadzić wszelkie zmiany w projekcie gotowym, dostosowując go do indywidualnych potrzeb inwestora.

 

 

 

Znajdź adaptującego

 

 

 

Zapytaj o rysunki szczegółowe

Szacunkowe koszty realizacji

Opis robót Ceny minimalne Ceny średnie
Stan zero 61 450,00 PLN 86 501,00 PLN
Stan surowy otwarty 203 247,00 PLN 272 018,00 PLN
Stan surowy zamknięty 88 566,00 PLN 119 784,00 PLN
Razem 353 263,00 PLN 478 303,00 PLN
Szacunkowe koszty instalacji 63 447,00 PLN 90 799,00 PLN

UWAGA! Budując dom systemem gospodarczym można znacznie obniżyć koszty realizacji.
System gospodarczy – inwestor sam lub z pomocą rodziny, w miarę możliwości, wykonuje niektóre prace budowlane, nadzoruje budowę, wyszukuje promocje na materiały i dowozi je wraz ze sprzętem na plac budowy. Szacunkowo można tą metodą zaoszczędzić 25-35% kosztów inwestycji.

Wyceń budowę domu w technologii murowanej

Wyceń budowę domu w technologii murowanej