Ajaks 2 odbicie lustrzane4 599 zł

autor: architekt Katarzyna Maciejewska

Powierzchnia użytkowa

127,33 +Garaż: 39,60
+Strych / pralnia: 4,04 (5,58)
+Strych: 25,28 (32,43)
+Strych: 4,33 (5,77)

Powierzchnia zabudowy

149,60

Powierzchnia całkowita

299,20

Powierzchnia netto

238,81

Kubatura

924,00

Wysokość budynku

8,45m

Kąt dachu

40,00°

Powierzchnia dachu

276,37

Ep

25,30 kWh/(m²rok) biomasa

50,20 kWh/(m²rok) gaz ziemny

Minimalne wymiary działki

23,29x18,04m

Klasyczny dom z użytkowym poddaszem i dostawionym garażem. Prosta bryła, sprawdzone rozwiązania konstrukcyjne i jednocześnie przejrzysty, niezwykle przemyślany układ wnętrz, to bez wątpienia zalety tego budynku. Do środka dostajemy się przez dużych rozmiarów wiatrołap, w którym wygospodarowano miejsce na praktyczne szafy przesuwne. W ciągu dnia domownicy mogą relaksować się w dużym, dobrze oświetlonym salonie, z którego na zewnątrz prowadzą dwa wyjścia – bezpośrednio na ogród i drugie, zaraz przy jadalni. Takie rozwiązanie sprawia, że dom nadaje się na działkę z wjazdem zarówno od północy, jak również od południa. Pokój dzienny połączono z kuchnią, którą w razie potrzeby można oddzielić ścianką działową. Nie zapomniano także o dużej, praktycznej spiżarni. Na parterze znalazł się jeszcze jeden pokój, który można przeznaczyć np. na gabinet oraz duża łazienka z prysznicem. Do dwustanowiskowego garażu dostajemy się bezpośrednio z wiatrołapu przez dużych rozmiarów pomieszczenie gospodarcze, które może pełnić rolę garderoby, pralni lub składu akcesoriów ogrodowych. Zaraz za garażem znalazła się kotłownia z bezpośrednim wyjściem na ogród. Jest ona na tyle duża, że bez trudu pomieści piec na ekogroszek. W budynku zaprojektowano dwa rodzaje ogrzewania: GAZOWE oraz na PALIWO STAŁE. Inwestor zadecyduje, które z nich wykorzysta. Na piętrze znajdują się trzy ustawne pokoje i duża łazienka z miejscem na wannę i prysznic. Główna sypialnia została połączona ze sporą garderobą, ze spocznika schodów dostaniemy się natomiast do pomieszczenia nad garażem, wydzielono w nim pralnię i schowek, reszta powierzchni może pełnić rolę strychu, miejsca zabaw lub po prostu dodatkowego pokoju. Dom jest prosty i tani w budowie, jego elewację można wykończyć zarówno w nowoczesny jak i klasyczny sposób. Budynek zaprojektowano w oparciu o najnowsze przepisy prawa budowlanego, z dużą dbałością o jego wpływ na środowisko naturalne.

Uwaga! Dokumentacja Projektowa nie zawiera elementów małej architektury takich jak: donice, podesty, altany, grille ogrodowe, murki, pergole, a także innych elementów wizualizacji, takich jak: garaże i wiaty wolnostojące, drogi, podjazdy, ogrodzenia, baseny itp.

Dodatki do projektu

  • Zestawienie materiałów do projektu GRATIS* !!!

    Zestawienie materiałów do projektu GRATIS* !!!

    Wykaz podstawowych materiałów i prac niezbędnych do budowy domu, czyli tzw. ślepy kosztorys. Stanowi nieoceniony dodatek do projektu, uzupełnia go, ułatwia budowę, jest podstawą wyceny kosztów budowy i robocizny.
    * Dla projektów z gotowym kosztorysem

  • Kosztorys inwestorski w cenie 500 zł

    Kosztorys inwestorski w cenie 500 zł

    Kosztorys inwestorski zawiera dokładnie wyliczone koszty budowy domu od stanu zero do stanu deweloperskiego. Wszystkie nasze kosztorysy zawierają ponadto szacunkowe koszty instalacji oraz dodany podatek VAT.

    W wielu przypadkach koszty budowy naszych domów opierają się o dwa poziomy cen – średnie i minimalne, daje to jeszcze lepszy obraz tego, z jaką rozpiętością wydatków będzie się musiał zmierzyć przyszły Inwestor.

  • Dodatkowy egzemplarz projektu w cenie 450 zł

    Dodatkowy egzemplarz projektu w cenie 450 zł

    Przyda się w trakcie zbierania ofert i wycen, a także podczas prac budowlanych. Warunkiem zakupu jest posiadanie oryginalnego projektu naszej pracowni. Dodatkowy egzemplarz można także oczywiście zamówić przy zakupie projektu. Dodatkowy egzemplarz składa się z projektu architektoniczno-budowlanego i projektu technicznego.

  • Ogrzewanie na paliwo stałe GRATIS !!!

    Ogrzewanie na paliwo stałe GRATIS !!!

    Projekty oznaczone tą ikonką mają w standardzie zaprojektowane ogrzewanie na paliwo stałe (biomasę) oraz, jako alternatywę, ogrzewanie przy pomocy gazu ziemnego lub pompy ciepła. Inwestorzy często wybierają ogrzewanie na paliwo stałe ze względu na niskie koszty lub brak dostępu do sieci gazowej. Dokumentacja zawiera zawsze dwa w pełni zaprojektowane rodzaje ogrzewania. Daje to komfort swobody wyboru, bez konieczności przerabiana projektu.

  • Rekuperacja GRATIS !!!

    Rekuperacja GRATIS !!!

    Rekuperacja, będąc wentylacją mechaniczną, opiera się na ruchu powietrza wytwarzanym przez maszynę, urządzenie zwane rekuperatorem. Rekuperator umożliwia kontrolowanie ruchu powietrza nawiewanego i usuwanego z pomieszczeń oraz odzyskiwanie ciepła, z nagrzanego już, ale brudnego (wilgotnego i nasyconego dwutlenkiem węgla) powietrza.

    Innymi słowy rekuperacja to system służący do wymieniania zużytego, brudnego powietrza w Twoim domu na czyste, świeże, przy jednoczesnym odzyskiwaniu części zgromadzonego już ciepła.

  • Elektroniczna wersja projektu w cenie 700 zł

    Elektroniczna wersja projektu w cenie 700 zł

    Wersja elektroniczna projektu jest przydatna na etapie adaptacji projektu bądź w momencie gdy projekt jest złożony w urzędzie, a istnieje potrzeba ustalenia współpracy z wykonawcami. Wersja elektroniczna projektu wysyłana jest drogą elektroniczną, po wcześniejszym zakupie pełnej wersji papierowej projektu. Rekomendujemy zakup wersji elektronicznej projektu, po wcześniejszych konsultacjach z architektem adaptującym, ponieważ nie ma możliwości zwrotu wersji elektronicznej projektu. Każda wersja elektroniczna projektu, podobnie jak wersja papierowa, zabezpieczona jest specjalnym Indywidualnym Numerem Ewidencyjnym dla danego kupującego.

    Wersja elektroniczna projektu zawiera:

    • Opis architektoniczno-budowlany - wersja edytowalna
    • Architektura budynku - Pliki DWG (wersja edytowalna): Rzut działki, Elewacje, Rzuty kondygnacji, Przekroje
    • Architektura budynku - Pliki PDF: Elewacje, Rzuty kondygnacji, Rzut dachu, Przekroje, Zestawienie stolarki, Zestawienie warstw, Zestawienie materiałów (przedmiar robót)
    • Konstrukcja budynku - Pliki PDF: Rzut fundamentów, Rzut stropu, Rzut więźby dachowej.

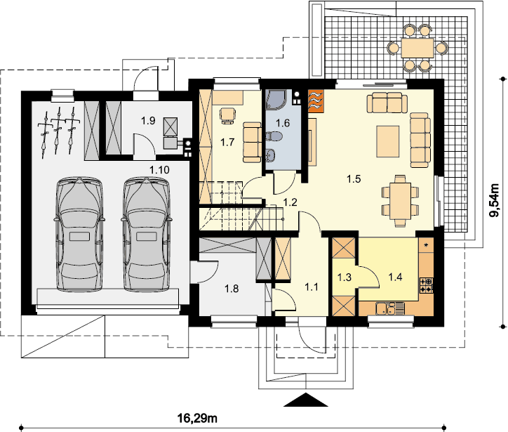
Rzut parteru 75,70

     
1.1 Wiatrołap 6,12m²
1.2 Komunikacja 3,00m²
1.3 Spiżarnia 2,63m²
1.4 Kuchnia 8,72m²
1.5 Salon z jadalnią 26,22m²
1.6 Łazienka 4,00m²
1.7 Gabinet 10,09m²
1.8 Pom. gospodarcze / garderoba 8,33m²
1.9 Kotłownia 6,59m²
1.10 Garaż 39,60m²
 

Rzut poddasza 51,63 (69,19 m²)


zestawienie powierzchni użytkowej (powierzchnia podłogi)

     
2.1 Komunikacja 6,04m² (6,04m²)
2.2 Pokój 12,23m² (16,50m²)
2.3 Pokój 10,25m² (14,64m²)
2.4 Pokój 11,90m² (16,29m²)
2.5 Garderoba 4,19m² (6,23m²)
2.6 Łazienka 7,02m² (9,49m²)
2.7 Strych / pralnia 4,04m² (5,58m²)
2.8 Strych 25,28m² (32,43m²)
2.9 Strych 4,33m² (5,77m²)
 

Przekrój

  • Budynek posadowiony został na fundamentach betonowych.
  • Ściany zewnętrzne dwuwarstwowe z betonu komórkowego.
  • Ściany wewnętrzne z betonu komórkowego jak i z płyty gipsowo-kartonowej [na ruszcie].
  • Strop żelbetowy-wylewany.
  • Więźba dachowa drewniana.
  • Pokrycie dachu - dachówka cementowa.
  • Ogrzewanie gazowe lub na paliwo stałe.

Elewacje

Rzut działki

 

 

Każdy projekt gotowy wymaga adaptacji do działki, przez uprawnionego architekta, zgodnie z miejscowym planem zagospodarowania przestrzennego. Architekt adaptujący może także wprowadzić wszelkie zmiany w projekcie gotowym, dostosowując go do indywidualnych potrzeb inwestora.

 

 

 

Znajdź adaptującego

 

 

 

Zapytaj o rysunki szczegółowe

Szacunkowe koszty realizacji

Opis robót Ceny minimalne Ceny średnie
Stan zero 45 909,00 PLN 63 590,00 PLN
Stan surowy otwarty 168 418,00 PLN 219 973,00 PLN
Stan surowy zamknięty 52 207,00 PLN 62 760,00 PLN
Razem 266 534,00 PLN 346 323,00 PLN
Szacunkowe koszty instalacji 47 472,00 PLN 62 274,00 PLN

UWAGA! Budując dom systemem gospodarczym można znacznie obniżyć koszty realizacji.
System gospodarczy – inwestor sam lub z pomocą rodziny, w miarę możliwości, wykonuje niektóre prace budowlane, nadzoruje budowę, wyszukuje promocje na materiały i dowozi je wraz ze sprzętem na plac budowy. Szacunkowo można tą metodą zaoszczędzić 25-35% kosztów inwestycji.

Wyceń budowę domu w technologii murowanej

Wyceń budowę domu w technologii murowanej